Klinkerhaus Nordic Fusion von Meisterstueck Haus aus der Terrassenansicht
Klinkerhaus Nordic Fusion von Meisterstueck Haus Seitenansicht
Klinkerhaus Nordic Fusion von Meisterstueck Haus aus der Frontalansicht
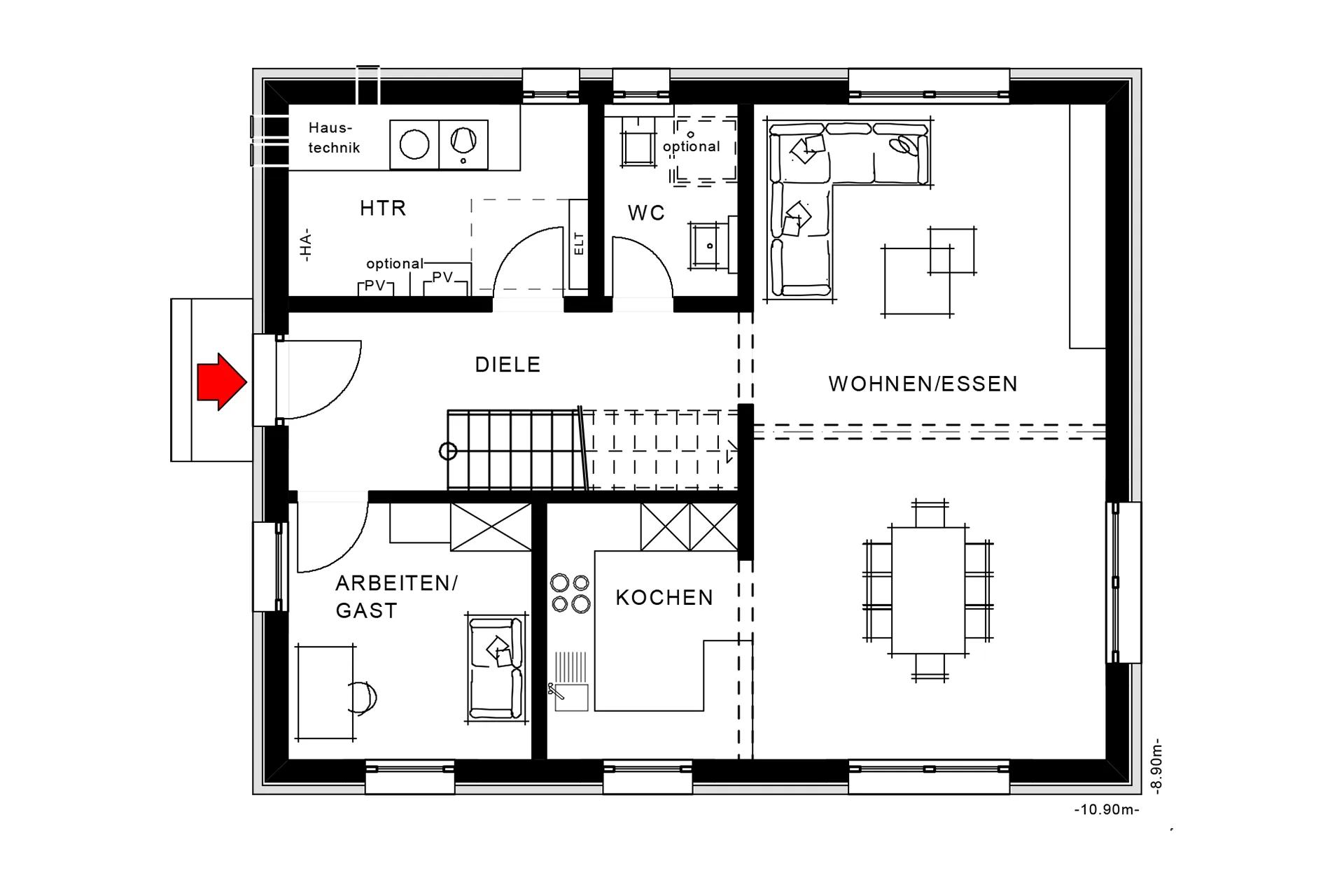
Klinkerhaus Nordic Fusion von Meisterstück Haus Grundriss Erdgeschoss
Klinkerhaus Nordic Fusion von Meisterstueck Haus Grundriss Obergeschoss

Nordic Fusion - Klinker & Holz

Zeitlose Architektur trifft auf nordisches Flair

Modernes, zeitloses Architektur-Design trifft auf nordische Klarheit und langlebige Funktionalität. Nordic Fusion von Meisterstück-HAUS vereint nachhaltigen Holztafelbau mit schützender Klinkerfassade. Das Einfamilienhaus mit insgesamt ca. 146 qm Wohnfläche aus zwei Geschossen besticht durch seine klare Linienführung und eine charakteristische Fassadengestaltung

Das ca. 74 qm große Erdgeschoss des Hauses empfängt seine Bewohner in einer hellen Diele, die direkt im großzügigen, lichtdurchfluteten Lebensbereich mündet. Hier gehen Küche, Ess- und Wohnbereich harmonisch ineinander über. Großflächige Fensterfronten sorgen für eine freundliche Atmosphäre und ermöglichen einen fließenden Übergang zur Terrasse und in den Garten. Ergänzt wird das Raumangebot im Erdgeschoss durch ein Gäste-WC, den Haustechnikraum sowie ein flexibel nutzbares Zimmer, das sich perfekt als Homeoffice, Gästezimmer oder Hobbyraum eignet.

Das Obergeschoss ist mit ca. 72 qm Wohnfläche ganz auf die Bedürfnisse von Familien ausgerichtet: Zwei gleich große Kinderzimmer bieten Raum für individuelle Entfaltung und Geborgenheit, während das Elternschlafzimmer mit integrierter Ankleide viel Platz und Komfort bietet. Ein großzügiges, modern ausgestattetes Familienbad rundet das Angebot ab und sorgt für höchsten Wohnkomfort im Alltag.

Ein besonderes Highlight des Nordic Fusion ist das charakteristische Fassadendesign: Das Erdgeschoss ist rundum mit robustem Klinker verkleidet, der nicht nur langlebig und pflegeleicht ist, sondern auch optimalen Witterungsschutz bietet. Das Obergeschoss präsentiert sich hochwertig verputzt bis unter die Dachkante und verleiht dem Haus eine moderne, elegante Optik. Diese Kombination sorgt für eine klare Gliederung der Geschosse und unterstreicht die zeitgemäße Architektur.

Sichern Sie sich das Einfamilienhaus "Nordic Fusion" jetzt als Aktionshaus:

  • modernes Einfamilienhaus mit Teilklinker-Fassade und ca. 146 qm Wohnfläche
  • EG: offener Wohn-/Essbereich, Küche, Arbeits-/Gästezimmer und Gäste-WC
  • OG: Schlafzimmer mit Ankleide, 2 Kinder-bzw. Gäste-/Arbeitszimmer, Familien-Bad mit Dusche und Badewanne, Abstellraum (optional als Kinder-Bad)
  • mit Luft-Luft-Wärmepumpe inkl. kontrollierter Be-/Entlüftung mit Wärmerückgewinnung
  • inkl. Vorbereitung für spätere Photovoltaik-Nutzung
  • nachhaltig gebaut mit ökologischen Baustoffen

ab 399.826,– Euro*

*gemäß Baubeschreibung 2025; ab Oberkante Bodenplatte, ohne Malerarbeiten, Teppichboden und Innentüren; weitere optionale Einsparpotenziale bzw. diverse Ergänzungen (gegen Aufpreis) möglich. Angebot befristet bis 30.06.26.

Hausdaten

Baustil

Klassische Familienhäuser

Wohnfläche

146m²

Gebäudeart

Aktionshaus

Außenmaße

8.9m x 10.9m

Bauweise

Holz-Tafelbau

Anzahl Räume

5

Fassade

Klinker,Putz

Geschosse

2

Dachform

Sattel-/Giebeldach

Energiestandard

Effizienzhaus 55

Klinkerhaus Nordic Fusion von Meisterstueck Haus aus der Terrassenansicht
Klinkerhaus Nordic Fusion von Meisterstueck Haus Seitenansicht
Klinkerhaus Nordic Fusion von Meisterstueck Haus aus der Frontalansicht
Klinkerhaus Nordic Fusion von Meisterstück Haus Grundriss Erdgeschoss
Klinkerhaus Nordic Fusion von Meisterstueck Haus Grundriss Obergeschoss

Diese Häuser könnten Sie auch interessieren:

Aktionshaus
Planungsidee
146 m²
ab 361.066 €
Aktionshaus
Planungsidee
148 m²
ab 375.244 €
Klinkerhaus Cape Dutch von Meisterstueck Haus Außenansicht aus Bäumen
Aktionshaus
Planungsidee
148 m²
ab 421.210 €
Aktionshaus
Planungsidee
148 m²
ab 386.848 €
Ästhetik Haus mit Außenpool
Aktionshaus
Planungsidee
130 m²
ab 399.767 €
Aesthetik 21.20.026 von Meisterstueck Haus Gartenansicht
Aktionshaus
Kundenhaus
112 m²
ab 409.437 €
Linear mit Wintergarten von Meisterstueck Haus Teichansicht
Aktionshaus
Planungsidee
146 m²
ab 386.667 €
Modernes Fachwerkhaus von Meisterstueck Haus Gartenansicht
Aktionshaus
Planungsidee
147 m²
ab 445.636 €
Aktionshaus
Planungsidee
136 m²
ab 385.141 €