Klinkerhaus Cape Dutch von Meisterstueck Haus Wohnbereich

Cape Dutch

Zeitlose Eleganz trifft nachhaltigen Wohnkomfort

Der Architekturentwurf „Cape Dutch“ von Meisterstück-HAUS verbindet traditionellen Charme mit moderner Ästhetik. Der zeitlose Entwurf mit erhöhtem „Cape Dutch“-Giebel sorgt für eine außergewöhnliche Optik und zeichnet das Haus durch Langlebigkeit, Witterungsbeständigkeit und zeitlose Silhouette aus. Ein ideales Zuhause für eine drei- bis vierköpfige Familie.

Die optimal isolierte Holz-Fertigbauweise sorgt für ein gesundes Raumklima. In Kombination mit modernster Heiztechnik ermöglicht sie zudem niedrige Heizkosten sowie eine hohe Energieeffizienz. Optional kann eine Photovoltaikanlage auf dem Satteldach installiert werden, um nachhaltig Energie zu erzeugen.

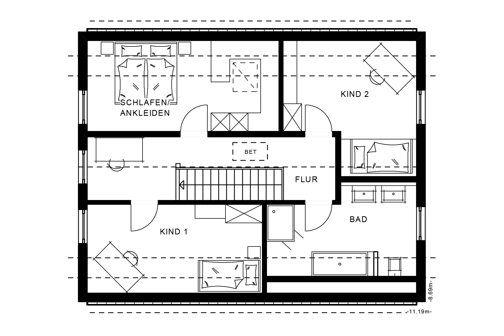
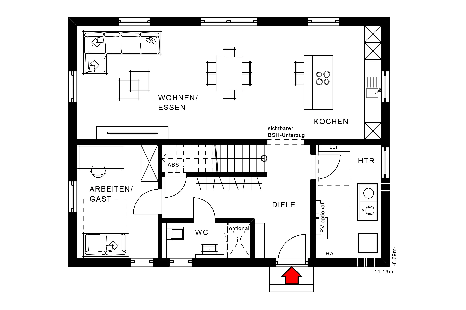
Im Inneren überzeugt das Haus mit einem durchdachten, komfortablen Raumkonzept über zwei Ebenen. Im Erdgeschoss (ca. 81 qm) finden sich ein offener Wohn- und Essbereich, eine großzügige Küche, ein flexibles Arbeits-/Gästezimmer sowie ein Gäste-WC und einen praktischen Abstellraum unter der Treppe. Das Dachgeschoss (ca. 67 qm) bietet privaten Rückzugsraum mit einem geräumigen Schlafzimmer mit Ankleide, zwei hellen Kinder- oder Hobbyzimmern, einem komfortablen Bad und dem zentralen Flur. Der erhöhte Kniestock von 1,20 m und optionale Dachflächenfenster sorgen für zusätzliche Nutzfläche und viel Licht.

Mit dem Haus „Cape Dutch“ investieren Sie in ein nachhaltiges, funktionales und stilvolles Zuhause, das höchste Ansprüche an Ästhetik, Komfort und Effizienz erfüllt. Überzeugen Sie sich selbst von den Vorteilen dieses Meisterstücks – wir beraten Sie gerne bei der Realisierung Ihres Traumhauses. 

Sichern Sie sich das Einfamilienhaus "Cape Dutch" jetzt als Aktionshaus:

  • modernes Einfamilienhaus - Fassade und ca. 148 qm Wohnfläche
  • EG: offener Wohn-/Essbereich, Küche, Arbeits-/Gästezimmer und Gäste-WC
  • DG: Schlafzimmer mit Ankleide, 2 Kinder-bzw. Gäste-/Arbeitszimmer und Familien-Bad mit Dusche und Badewanne
  • mit Luft-Luft-Wärmepumpe inkl. kontrollierter Be-/Entlüftung mit Wärmerückgewinnung
  • Tegalit-Dachstein
  • inkl. Vorbereitung für spätere Photovoltaik-Nutzung
  • nachhaltig gebaut mit ökologischen Baustoffen

ab 375.244,– Euro*

*gemäß Baubeschreibung 2025; ab Oberkante Bodenplatte, ohne Malerarbeiten, Teppichboden und Innentüren; weitere optionale Einsparpotenziale bzw. diverse Ergänzungen (gegen Aufpreis) möglich. Angebot befristet bis 30.06.26.

Hausdaten

Baustil

Klassische Familienhäuser

Wohnfläche

148m²

Gebäudeart

Aktionshaus

Bauweise

Holz-Tafelbau

Anzahl Räume

5

Fassade

Putz

Geschosse

1.5

Dachform

Sattel-/Giebeldach

Energiestandard

Effizienzhaus 55

Klinkerhaus Cape Dutch von Meisterstueck Haus Wohnbereich

Diese Häuser könnten Sie auch interessieren:

Aktionshaus
Planungsidee
146 m²
ab 361.066 €
Klinkerhaus Nordic Fusion von Meisterstueck Haus aus der Terrassenansicht
Aktionshaus
Planungsidee
146 m²
ab 399.826 €
Klinkerhaus Cape Dutch von Meisterstueck Haus Außenansicht aus Bäumen
Aktionshaus
Planungsidee
148 m²
ab 421.210 €
Aktionshaus
Planungsidee
148 m²
ab 386.848 €
Ästhetik Haus mit Außenpool
Aktionshaus
Planungsidee
130 m²
ab 399.767 €
Aesthetik 21.20.026 von Meisterstueck Haus Gartenansicht
Aktionshaus
Kundenhaus
112 m²
ab 409.437 €
Linear mit Wintergarten von Meisterstueck Haus Teichansicht
Aktionshaus
Planungsidee
146 m²
ab 386.667 €
Modernes Fachwerkhaus von Meisterstueck Haus Gartenansicht
Aktionshaus
Planungsidee
147 m²
ab 445.636 €
Aktionshaus
Planungsidee
136 m²
ab 385.141 €