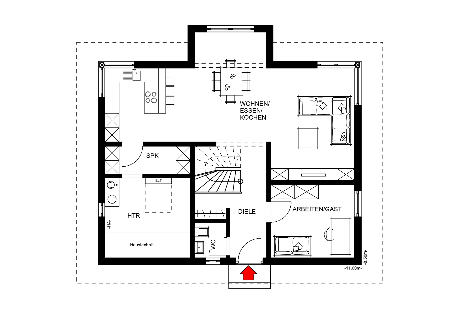
Aktionshaus LINEAR mit 3. Giebel von Meisterstueck Haus Erdgeschoss
Aktionshaus LINEAR mit 3. Giebel von Meisterstueck Haus Dachgeschoss

LINEAR mit 3. Giebel

Mehr Raum durch Erker-Vorbau

Dieses Familienhaus der Architekturlinie LINEAR besticht durch sein offenes Raumkonzept und große Übereck-Verglasungen, die den großzügigen Lebensbereich im Erdgeschoss mit viel Licht versorgen. Der traufseitige Erker bietet im Erdgeschoss einen wunderbaren Essplatz mit schöner Aussicht. Ergänzt wird die untere Etage durch eine Speisekammer, den Technikraum, ein Gäste-WC sowie ein Arbeits-/Gästezimmer. Mit Elternschlafzimmer, zwei Kinderzimmern und einem großen Badezimmer mit Dusche und Badewanne bietet das Dachgeschoss ein komfortables Raumangebot. Erweitert wird dieses durch den dritten Giebel: Er schafft einen zusätzlichen Raum, der als weiteres Arbeits-, Gäste- oder Kinderzimmer genutzt werden kann. Damit ist dieses LINEAR Haus das optimale Zuhause für eine vier- bis fünfköpfige Familie.

  • ca. 162 qm Nettogrundfläche (ca. 148 qm WF)
  • EG: offener Lebensbereich, Arbeits-/Gästezimmer und Gäste-WC
  • DG: Schlafzimmer, zwei Kinderzimmer, Arbeits-/Gästezimmer, Badezimmer
  • inkl. elektrische Rollläden
  • mit Luft-Luft-Wärmepumpe inkl. kontrollierter Be-/Entlüftung mit Wärmerückgewinnung
  • gebaut mit ökologischen Baustoffen
  • inkl. Vorbereitung für spätere Photovoltaik-Nutzung
     

ab 386.848,– Euro*

*gemäß Baubeschreibung 2025; ab Oberkante Bodenplatte, ohne Malerarbeiten, Teppichboden und Innentüren, Holzschalung für Erker sowie bodentiefe Erker-Fenster gegen Aufpreis; weitere optionale Einsparpotenziale bzw. diverse Ergänzungen (gegen Aufpreis) möglich. Angebot befristet bis 30.06.26.

 

Hausdaten

Baustil

Klassische Familienhäuser

Wohnfläche

148m²

Gebäudeart

Aktionshaus

Außenmaße

8.5m x 11m

Bauweise

Holz-Tafelbau

Fassade

Putz

Geschosse

1.5

Dachform

Sattel-/Giebeldach

Energiestandard

Effizienzhaus 55

Aktionshaus LINEAR mit 3. Giebel von Meisterstueck Haus Erdgeschoss
Aktionshaus LINEAR mit 3. Giebel von Meisterstueck Haus Dachgeschoss

Diese Häuser könnten Sie auch interessieren:

Aktionshaus
Planungsidee
146 m²
ab 361.066 €
Aktionshaus
Planungsidee
148 m²
ab 375.244 €
Klinkerhaus Nordic Fusion von Meisterstueck Haus aus der Terrassenansicht
Aktionshaus
Planungsidee
146 m²
ab 399.826 €
Klinkerhaus Cape Dutch von Meisterstueck Haus Außenansicht aus Bäumen
Aktionshaus
Planungsidee
148 m²
ab 421.210 €
Ästhetik Haus mit Außenpool
Aktionshaus
Planungsidee
130 m²
ab 399.767 €
Aesthetik 21.20.026 von Meisterstueck Haus Gartenansicht
Aktionshaus
Kundenhaus
112 m²
ab 409.437 €
Linear mit Wintergarten von Meisterstueck Haus Teichansicht
Aktionshaus
Planungsidee
146 m²
ab 386.667 €
Modernes Fachwerkhaus von Meisterstueck Haus Gartenansicht
Aktionshaus
Planungsidee
147 m²
ab 445.636 €
Aktionshaus
Planungsidee
136 m²
ab 385.141 €