Doppelhaus fuer Individualisten von Meisterstueck Haus Seitenansicht Strasse 1
Doppelhaus fuer Individualisten von Meisterstueck Haus Garagenansicht
Doppelhaus fuer Individualisten von Meisterstueck Haus Gartenansicht
Doppelhaus fuer Individualisten von Meisterstueck Haus Terrassenansicht
Doppelhaus fuer Individualisten von Meisterstueck Haus Treppe
Doppelhaus fuer Individualisten von Meisterstueck Haus Esszimmer
Doppelhaus fuer Individualisten von Meisterstueck Haus Badezimmer
Doppelhaus fuer Individualisten von Meisterstueck Haus Schlafzimmer
Doppelhaus fuer Individualisten von Meisterstueck Haus Frontansicht
Doppelhaus fuer Individualisten von Meisterstueck Haus Grundriss Erdgeschoss
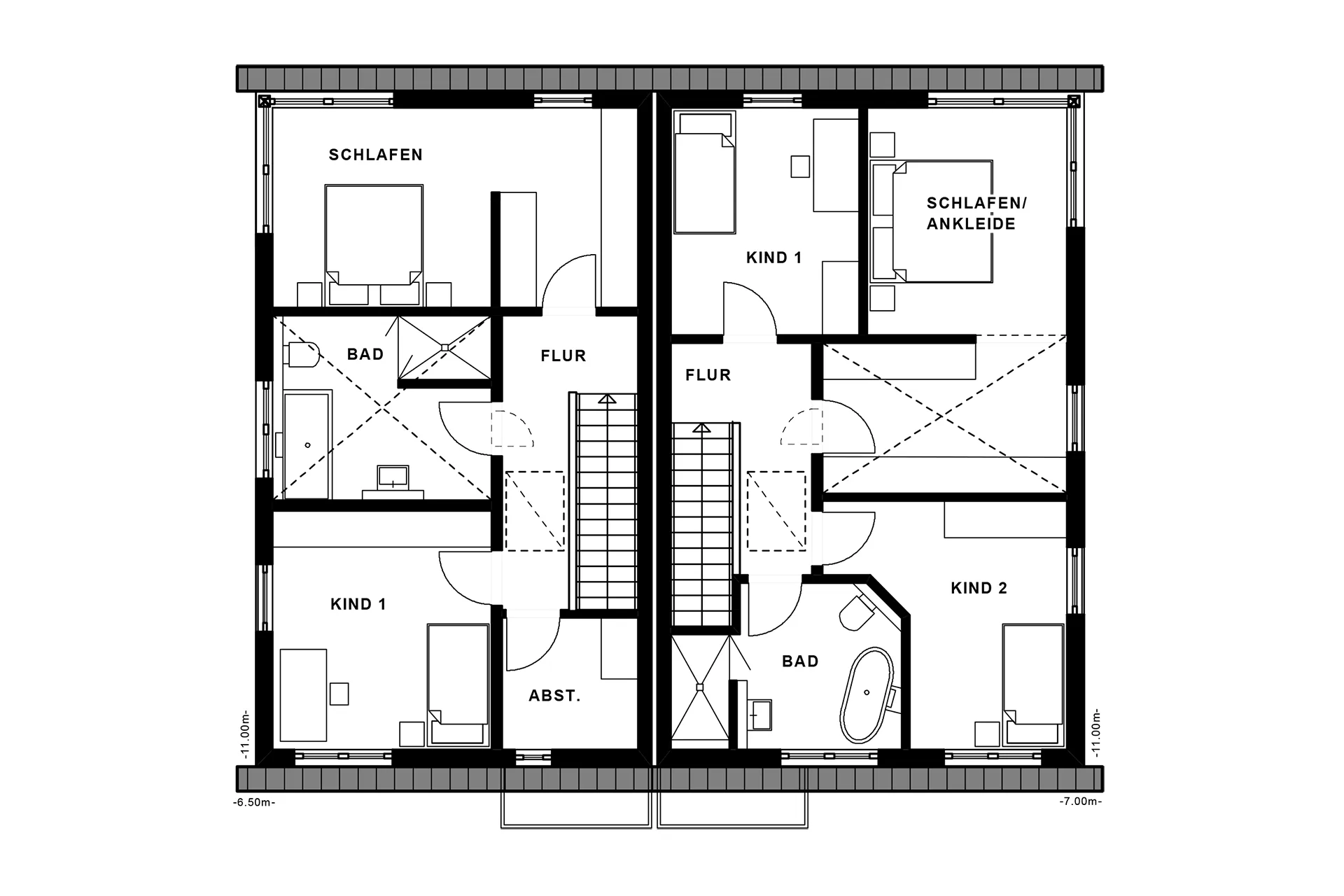
Doppelhaus fuer Individualisten von Meisterstueck Haus Grundriss Obergeschoss

Doppelhaus für Individualisten

Individuelles Architektenhaus für zwei Familien

Dieses Doppelhaus mit Garage und Carport wurde individuell für zwei befreundete Bauherren-Paare als KfW-Effizienzhaus 55 geplant. Mit rund 112 bzw. 123 qm bieten die zweigeschossigen Haushälften komfortable Wohnfläche für 2-3 bzw. 2-4 Personen. Beide verfügen über einen hellen, großzügigen Wohn-/Essbereich mit offener Küche sowie ein separates Gäste-WC im Erdgeschoss. Im Obergeschoss befinden sich neben den großen Bädern sowohl die Schlafzimmer mit begehbarer Ankleide als auch zusätzliche Gäste- bzw. Arbeitszimmer. Zusätzlich zur effizienten Heiztechnik mit Luft-Luft bzw. Luft-Wasser-Wärmepumpen sorgt eine Photovoltaik-Anlage für eine autarke Stromversorgung.

Sichern Sie sich jetzt das "Doppelhaus für Individualisten" zum zeitlich befristeten Aktionspreis - schon ab 606.244,- Euro. Einzelpreise für variabel kombinierbare Doppelhaushälften (DHH) und Leistungen wie folgt:

DHH 1 (6,5 x 11 m):

  • mit ca. 112 qm Wohnfläche
  • mit offenem Lebensbereich, Gäste-WC und HWR im EG
  • Schlafzimmer mit begehbarer Ankleide, Kinder- bzw. Arbeitszimmer und Badezimmer im DG
  • inkl. elektrische Rollläden/Raffstores
  • mit Luft-Luft-Wärmepumpe inkl. kontrollierter Be-/Entlüftung mit Wärmerückgewinnung
  • gebaut mit ökologischen Baustoffen

ab 315.216,- Euro*


DHH 2 (7 x 11 m):

  • mit ca. 123 qm Wohnfläche
  • mit offenem Lebensbereich, Dusch-WC und HWR im EG
  • 2 Kinderzimmer, Schlafzimmer mit begehbarer Ankleide und Badezimmer im DG
  • inkl. elektrische Rollläden/Raffstores
  • mit Luft-Luft-Wärmepumpe inkl. kontrollierter Be-/Entlüftung mit Wärmerückgewinnung
  • gebaut mit ökologischen Baustoffen

ab 332.261,- Euro*


*gemäß Baubeschreibung 2025; ab Oberkante Bodenplatte, ohne Malerarbeiten, Teppichboden und Innentüren; Garage/Carport optional. Photovoltaik-Anlage nicht im Preis enthalten. Weitere Optionen gegen Aufpreis möglich. Abbildungen zeigen Sonderleistungen. Angebot befristet bis 30.06.26.

Beim Bau einer fremdgenutzen zusätzlichen Wohneinheit profitieren Sie auch von den neuen, attraktiven steuerlichen Abschreibungsmöglichkeiten. Sprechen Sie mit uns – wir beraten Sie gern!
 

Hausdaten

Baustil

Klassische Familienhäuser

Wohnfläche

234m²

Gebäudeart

Doppelhaus

Außenmaße

13m x 11m

Bauweise

Holz-Tafelbau

Anzahl Räume

7

Fassade

Putz

Geschosse

1

Dachform

Sattel-/Giebeldach

Energiestandard

Effizienzhaus 55 EE

Diese Häuser könnten Sie auch interessieren: