Musterhaus "Modernes Fachwerkhaus" Bad Vilbel

Exklusives Wohnambiente in Holz & Glas

Moderne Fachwerkarchitektur kombiniert mit viel Glas: Dieses Musterhaus von Meisterstück-HAUS in der Ausstellung Eigenheim & Garten in Bad Vilbel vermittelt Transparenz und ein Raumkonzept, das die architektonischen Grenzen aufzulösen scheint. Klare Konturen, zeitlose Ästhetik, nahtloser Übergang zwischen drinnen und draußen sowie das Spiel mit Lichteinfällen und Sichtachsen kennzeichnen die Architektursprache dieses Einfamilienhauses. Rund 244 qm Wohnfläche, eine Raumaufteilung mit weitläufigem, repräsentativem, offenem Wohn-, Ess- und Kochbereich, einer Galerie als optische Verbindung beider Wohnebenen, einer 37 qm großen Wellnessoase sowie eine hochwertige Ausstattung machen es einzigartig.

Das „Moderne Fachwerkhaus“ von Meisterstück-HAUS ist ein Eigenheim für anspruchsvolle Baufamilien und interpretiert die Wohnform Einfamilienhaus ganz neu. Als gelungene Symbiose aus traditionsreicher Fachwerkbauweise, moderner Architektur, großdimensionalen Verglasungen und Energieeffizienz bietet es Wohnkultur vom Feinsten. Das Meisterstück-Musterhaus präsentiert sich mit ansprechender Wohnästhetik: In seiner gesamten Tiefe offen und transparent konzipiert, schafft es durch seine weitläufigen Grundriss-Verläufe Raumerlebnisse, die faszinieren. Das reizvolle Zusammenspiel aus weißem Holzfachwerk, großräumigen Verglasungen und hellen Wänden wird ergänzt durch individuelle Einrichtungsideen, wie z.B. zahlreiche Einbaumöbel in Wohnbereich, Küche, Kinderzimmer u.a., die in Material, Farbe wie Form harmonisch auf die filigrane Holzfachwerkkonstruktion abgestimmt wurden und den Charakter des Fachwerkhauses widerspiegeln.

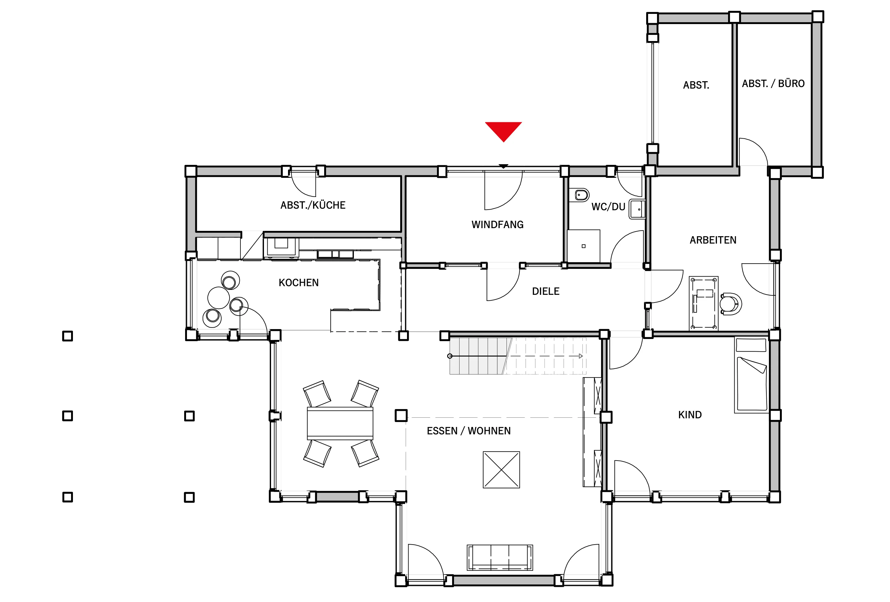
Im ca. 148 qm großen Erdgeschoss kennzeichnen fließende Übergänge von Wohnen, offener Küche und einer über beide Geschosse reichenden, vollverglasten Abschleppung des Essbereichs das Bild. Ergänzt wird der großzügige Erdgeschoss-Grundriss durch ein Kinderzimmer, ein Gäste-Dusch-WC, ein Büro mit angeschlossenem Abstellraum sowie ein weiterer, von außen zugänglicher Mehrzweckraum. Von der Diele aus führt eine einläufige, mit Teppich belegte Treppe auf die Empore unter dem Satteldach. Von hier aus ordnen sich mit Schlafzimmer, Ankleidebereich und dem 37 qm großen Wellness-Bereich (Bad mit Dusch, Badewanne, WC und Sauna) die Privaträume an. Das lichtdurchflutete Studio komplettiert das großzügige Raumangebot im Dachgeschoss mit insgesamt rund 97 qm.

Für ganzjährige Wohlfühlatmosphäre sorgt die moderne Heiztechnik mit Luft-Wasser-Wärmepumpe und Fußbodenheizung – geschaffen für höchste Ansprüche an energieeffizientes Wohnen.

Hausdaten

Baustil

Fachwerkhäuser

Wohnfläche

244.96m²

Gebäudeart

Einfamilienhaus

Außenmaße

15.7m x 17.41m

Bauweise

Holzskelettbauweise

Anzahl Räume

8

Fassade

Putz,Holz,Glas

Geschosse

1.5

Dachform

Sattel-/Giebeldach

Energiestandard

Effizienzhaus 55

Diese Häuser könnten Sie auch interessieren: