Bungalow Lichtblick von Meisterstueck Haus Frontansicht 1
Bungalow Lichtblick von Meisterstueck Haus Seitenansicht 1
Bungalow Lichtblick von Meisterstueck Haus Straßenansicht 1
Bungalow Lichtblick von Meisterstueck Haus Straßenansicht 2
Bungalow Lichtblick von Meisterstueck Haus Seitenansicht 2
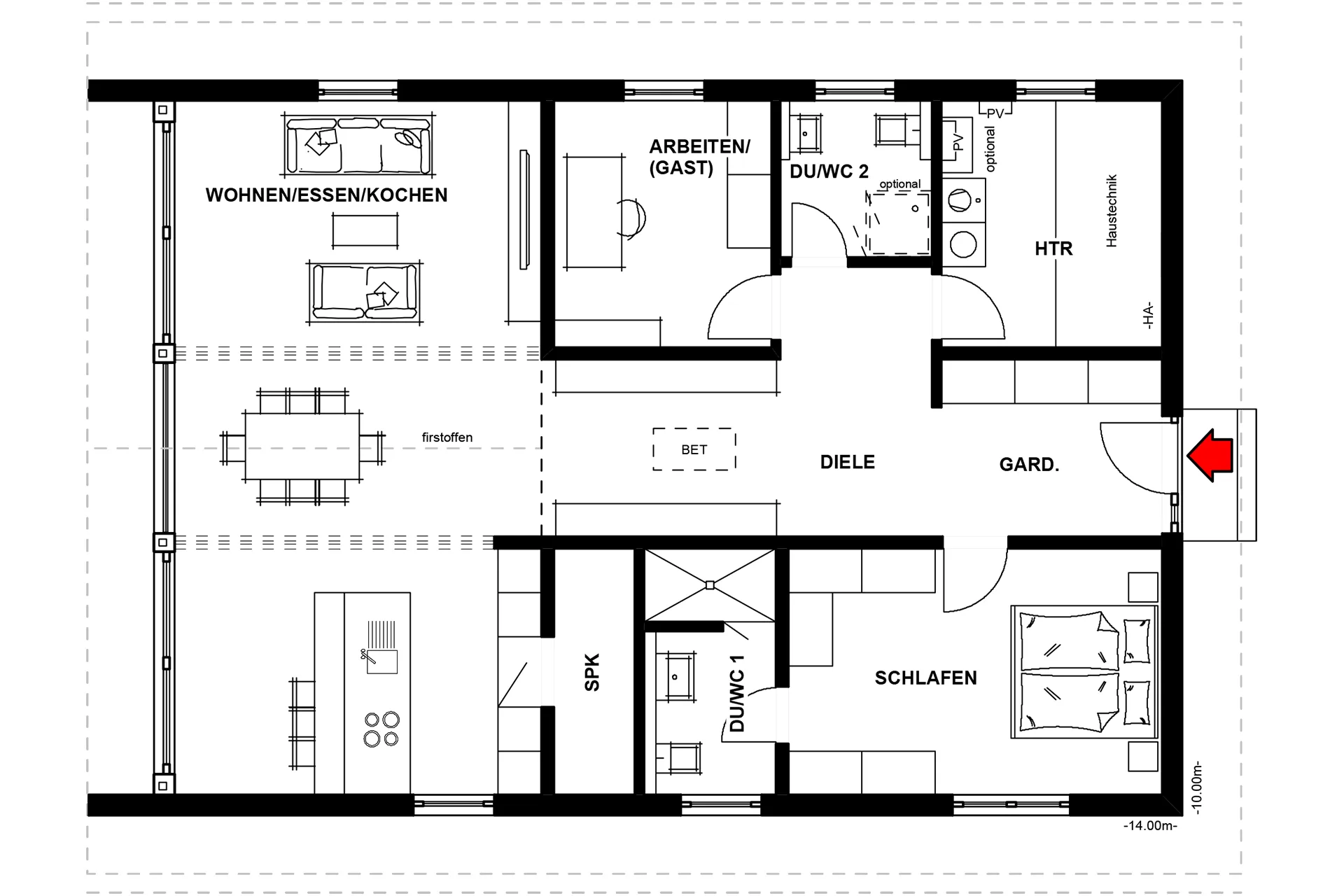
Bungalow Lichtblick von Meisterstueck Haus Grundriss
Bungalow Lichtblick von Meisterstueck Haus Frontansicht 2

Bungalow LICHTBLICK

Viel Licht & Luft auf einer Ebene

Viel Licht, viel Luft, viel Wohnqualität auf einer Ebene. Mit der großen Panorama-Verglasung und einem firstoffenen Lebensbereich zeigt sich der Bungalow LICHTBLICK außen wie innen mit einer außergewöhnlichen Architektursprache und bietet dabei eine Menge Wohnkomfort. Markantes Architekturmerkmal des Bungalows ist der schützend eingefasste Glas-Giebel zur Terrassen- bzw. Gartenseite. Über diesen gelangt angenehm viel Tageslicht ins Haus – durchgehend bis hin zum zentral gelegenen Eingangsbereich.

Neben dem offenen Wohn-/Ess-/Kochbereich mit angegliederter Speisekammer umfasst der ebenerdige Grundriss ein Schlafzimmer mit En-Suite-Dusch-Bad sowie einen weiteren Raum, nutzbar als Kinder-, Gäste oder Arbeitszimmer, sowie ein Gäste-WC und den Haustechnikraum. Zusätzliche Fläche und Abstellmöglichkeiten sind durch den ca. 75 qm großen Teil-Spitzboden gegeben. Mit seiner kompakten Raumaufteilung ist der Bungalow LICHTBLICK das ideale Zuhause für Paare oder eine 3-köpfige Familie.

Sichern Sie sich den Bungalow LICHTBLICK jetzt als Aktionshaus:

  • moderner Bungalow mit Panorama-Verglasung, großem Dachüberstand und Teil-Spitzboden
  • barrierearm wohnen auf ca. 121 qm Wohnfläche
  • firstoffener Lebensbereich (Kochen/Essen/Wohnen) mit vollverglastem Giebel zur Garten-/Terrassenseite
  • Schlafzimmer mit En-Suite-Bad, 1 Kinder-bzw. Gäste-/Arbeitszimmer, separates Gäste-WC (opt. mit Dusche)
  • nachhaltig gebaut mit ökologischen Baustoffen
  • mit Wärmepumpe, Fußbodenheizung sowie kontrollierter Be-/Entlüftung mit Wärmerückgewinnung
  • inkl. Vorbereitung für spätere Photovoltaik-Nutzung

ab 398.906,– Euro*

*) gemäß Baubeschreibung 2025, ab Oberkante Bodenplatte; ohne Malerarbeiten, Teppichboden und Innentüren; Carport optional; weitere optionale Einsparpotenziale bzw. diverse Ergänzungen (gegen Aufpreis) möglich. Angebot befristet bis 30.06.26.

Hausdaten

Baustil

Bungalows

Wohnfläche

121m²

Gebäudeart

Einfamilienhaus

Außenmaße

10m x 14m

Bauweise

Holz-Tafelbau

Anzahl Räume

3

Fassade

Putz,Glas

Geschosse

1.5

Dachform

Sattel-/Giebeldach

Energiestandard

Effizienzhaus 55

Bungalow Lichtblick von Meisterstueck Haus Frontansicht 1
Bungalow Lichtblick von Meisterstueck Haus Seitenansicht 1
Bungalow Lichtblick von Meisterstueck Haus Straßenansicht 1
Bungalow Lichtblick von Meisterstueck Haus Straßenansicht 2
Bungalow Lichtblick von Meisterstueck Haus Seitenansicht 2
Bungalow Lichtblick von Meisterstueck Haus Grundriss
Bungalow Lichtblick von Meisterstueck Haus Frontansicht 2

Diese Häuser könnten Sie auch interessieren: