Familienhaus mit Einliegerwohnung von Meisterstueck Haus Gartenansicht
Familienhaus mit Einliegerwohnung von Meisterstueck Haus Strassenansicht
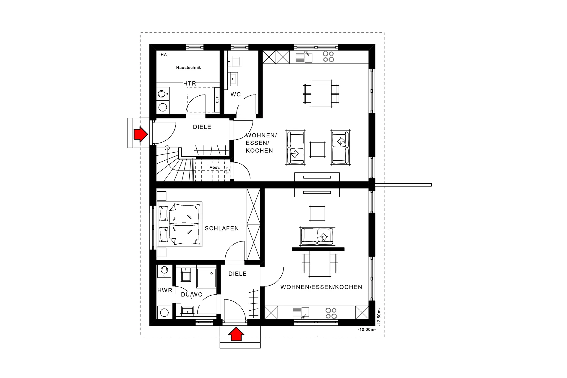
Familienhaus mit Einliegerwohnung von Meisterstueck Haus Grundriss Erdgeschoss
Familienhaus mit Einliegerwohnung von Meisterstueck Haus Grundriss Obergeschoss

Familienhaus mit Einliegerwohnung

Zwei separate Wohneinheiten unter einem Dach.

Das Familienhaus mit Einliegerwohnung bietet individuellen Wohnraum für zwei ganz unterschiedliche Lebenskonzepte - für Familien sowie für Singles oder junge Paare. Egal, ob als Mehrgenerationenhaus, zur Nutzung für eine Pflegekraft oder ein Au-Pair, als Zuhause für zwei befreundete Familien, als "refinanziertes" Eigenheim mit einer Wohneinheit zum Vermieten oder als reines Investitionsobjekt: Das Familienhaus mit Einliegerwohnung von Meisterstück-HAUS lässt Spielraum für Ihre individuelle Lebensplanung.  

  • Komfortable Wohneinheit für Familien mit insgesamt ca. 159 qm Wohnfläche auf zwei Geschossen: großzügiger, offener Lebensbereich (Wohnen/Essen/Küche), Gäste-WC und Hauswirtschaftsraum im EG; Schlafzimmer mit Ankleide, zwei Kinderzimmer, Arbeitszimmer, großes Familienbad und Abstellraum im OG
  • Separate Einliegerwohnung für Singles und Paare mit ca. 52 qm Wohnfläche im EG mit eigenem Eingang: offener Lebensbereich (Wohnen/Essen/Küche), Schlafzimmer, Dusch-Bad und Hauswirtschaftsraum
  • Nachhaltig gebaut mit ökologischen Baustoffen
  • Inkl. Wärmepumpe und Fußbodenheizung
  • Inkl. kontrollierter Be-/Entlüftung mit Wärmerückgewinnung
  • Vorbereitung für spätere Photovoltaik-Nutzung

ab 523.181,– Euro*

*gemäß Baubeschreibung 2025; ab Oberkante Bodenplatte, ohne Malerarbeiten, Teppichboden und Innentüren; weitere optionale Einsparpotenziale bzw. diverse Ergänzungen (gegen Aufpreis) möglich. Abbildungen können Sonderausstattung zeigen. Angebot befristet bis 31.03.26.

Beim Bau einer fremdgenutzen zusätzlichen Wohneinheit profitieren Sie auch von den neuen, attraktiven steuerlichen Abschreibungsmöglichkeiten. Sprechen Sie mit uns – wir beraten Sie gern!

Hausdaten

Baustil

Klassische Familienhäuser

Wohnfläche

212m²

Gebäudeart

Zweifamilienhaus

Außenmaße

12.5m x 10.5m

Bauweise

Holz-Tafelbau

Anzahl Räume

8

Fassade

Putz

Geschosse

2

Energiestandard

Effizienzhaus 55

Familienhaus mit Einliegerwohnung von Meisterstueck Haus Gartenansicht
Familienhaus mit Einliegerwohnung von Meisterstueck Haus Strassenansicht
Familienhaus mit Einliegerwohnung von Meisterstueck Haus Grundriss Erdgeschoss
Familienhaus mit Einliegerwohnung von Meisterstueck Haus Grundriss Obergeschoss

Diese Häuser könnten Sie auch interessieren: